THE HABITAT

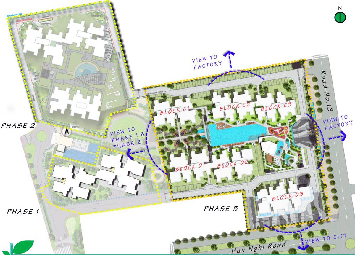
The Habitat Bình Dương không chỉ đơn thuần là một khu căn hộ, mà là tuyên ngôn về phong cách sống chuẩn quốc tế giữa lòng đô thị năng động. Tọa lạc ngay mặt tiền Quốc lộ 13 – trục giao thông huyết mạch kết nối xuyên suốt khu Đông TP.HCM – dự án sở hữu lợi thế hiếm có khi liền kề Aeon Mall Bình Dương Canary, nơi mọi tiện ích mua sắm, giải trí, ẩm thực chỉ cách vài phút dạo bước. Tổng thể dự án gồm 11 tòa tháp được quy hoạch bài bản và phát triển theo 3 giai đoạn rõ ràng: giai đoạn 1 và 2 đã hoàn thiện, đưa vào vận hành ổn định; riêng giai đoạn 3 với 6 block cao 18 tầng đã chính thức khép lại hành trình kiến tạo trong năm 2025, hoàn chỉnh một quần thể sống đồng bộ và bền vững.
Nằm sát cạnh khu công nghiệp VSIP 1 – biểu tượng hợp tác kinh tế Việt Nam – Singapore, The Habitat mang trong mình DNA phát triển chuẩn mực đến từ liên doanh Sembcorp Gateway và Công ty TNHH Phát triển VSIP Bình Dương. Dự án nổi bật với triết lý sống xanh làm trung tâm, nơi cảnh quan, tiện ích và kiến trúc được thiết kế hài hòa để tạo nên môi trường sống trong lành, riêng tư nhưng vẫn kết nối. Chính sự chỉn chu trong từng chi tiết, cùng cộng đồng cư dân văn minh, đã giúp The Habitat trở thành lựa chọn an cư hàng đầu của giới chuyên gia, kỹ sư và người nước ngoài đang làm việc tại Bình Dương – những người đề cao chất lượng sống, sự an toàn và giá trị bền vững lâu dài.
TỔNG QUAN THE HABITAT

| Hạng mục | Thông tin |
|---|---|
| Tên dự án | The Habitat – Khu căn hộ chuẩn sống quốc tế tọa lạc giữa lõi đô thị VSIP năng động |
| Chủ đầu tư | Liên doanh phát triển giữa Sembcorp Gateway (Singapore) và VSIP – bảo chứng uy tín từ những đơn vị tiên phong trong lĩnh vực đô thị xanh và phát triển bền vững |
| Vị trí | Nằm ngay Số 8 Đại lộ Hữu Nghị, KCN VSIP 1, phường Bình Hòa, TP. Hồ Chí Minh – vị trí chiến lược trên trục giao thương huyết mạch, liền kề Aeon Mall Bình Dương, kết nối nhanh các khu vực trọng điểm |
| Loại hình |
|
| Tổng diện tích | Khoảng 4 ha, quy hoạch đồng bộ, không gian mở |
| Mật độ xây dựng | 36% – ưu tiên mảng xanh, tiện ích và chất lượng sống |
| Quy mô phát triển | Các block cao 16 – 18 tầng, cung cấp sản phẩm đa dạng |
| Sản phẩm | Căn hộ 2 – 3 phòng ngủ, diện tích linh hoạt từ 67 – 100m², phù hợp an cư và đầu tư dài hạn |
| Tiện ích nội khu | Hồ bơi tràn bờ, khu BBQ ngoài trời, gym & spa, khu mua sắm – thương mại, nhà hàng, làng nướng, nhà trẻ, khu sinh hoạt cộng đồng và hệ thống văn phòng tiện ích |
| Pháp lý | Người Việt Nam: sở hữu lâu dài | Người nước ngoài: sở hữu có thời hạn 50 năm |
| Giá bán tham khảo | Từ 45 – 50 triệu/m² – mức giá hấp dẫn trong phân khúc căn hộ tiêu chuẩn quốc tế tại khu vực phát triển sôi động |
VỊ TRÍ CĂN HỘ THE HABITAT

Căn hộ The Habitat Bình Dương sở hữu vị trí hiếm có khi tọa lạc ngay giao điểm của Đại lộ Hữu Nghị và đường số 3, thuộc phường Bình Hòa – TP.HCM sau sáp nhập. Đây được xem là “tọa độ vàng” của khu đô thị – công nghiệp phát triển bậc nhất khu vực, nơi hội tụ hệ thống hạ tầng hoàn chỉnh, cộng đồng quốc tế đông đảo và nhịp sống hiện đại luôn vận động không ngừng. Từ vị trí này, The Habitat mở ra một không gian sống linh hoạt, nơi mọi kết nối đều trở nên ngắn hơn và tiện nghi luôn hiện hữu trong từng bước chân.
Chỉ trong vài phút di chuyển, cư dân đã có thể chạm đến những tiện ích nổi bật hàng đầu khu vực. Aeon Mall Bình Dương Canary – biểu tượng mua sắm và giải trí sôi động, sân golf Sông Bé xanh mát hay Trường Quốc tế MM1 đều nằm gọn trong bán kính khoảng 2 phút, mang đến sự thuận tiện tối đa cho sinh hoạt, giáo dục và thư giãn hằng ngày.
Mở rộng thêm một chút hành trình, khoảng 7 phút từ The Habitat là hệ thống tiện ích y tế – thương mại chất lượng cao như Bệnh viện Quốc tế Becamex, Bệnh viện Hạnh Phúc, Lotte Mart hay Mega Market. Mọi nhu cầu từ chăm sóc sức khỏe, mua sắm đến sinh hoạt gia đình đều được đáp ứng trọn vẹn, không cần di chuyển xa hay mất nhiều thời gian.
Trong vòng 10 phút, cư dân dễ dàng tiếp cận Chợ Lái Thiêu, Bệnh viện Quốc tế Columbia cùng nhiều điểm đến trọng yếu khác của khu vực. Đặc biệt, The Habitat còn ghi điểm mạnh khi kết nối thuận lợi đến Khu Đại học Quốc gia TP.HCM chỉ khoảng 30 phút và Sân bay Tân Sơn Nhất trong vòng 35 phút – một lợi thế lớn đối với giới chuyên gia, doanh nhân và cư dân thường xuyên di chuyển liên vùng, liên tỉnh.
Nhờ sở hữu vị trí trung tâm hiếm hoi, khả năng liên kết vùng vượt trội cùng hệ thống giao thông đã hoàn thiện, The Habitat Bình Dương không chỉ dừng lại ở vai trò một nơi để ở. Đây còn là lựa chọn an cư bền vững và là tài sản có giá trị gia tăng theo thời gian, dành cho những ai theo đuổi phong cách sống hiện đại, tiện nghi và kết nối toàn diện giữa công việc – gia đình – tận hưởng.

TIỆN ÍCH DỰ ÁN THE HABITAT
The Habitat Bình Dương không đơn thuần là một chốn để trở về sau mỗi ngày làm việc, mà là một hệ sinh thái sống được định hình chỉn chu, nơi mọi giá trị tiện nghi – thiên nhiên – cảm xúc được đặt vào vị trí trung tâm. Dự án được phát triển với tầm nhìn dài hạn, hướng đến chuẩn mực sống xanh bền vững, mang lại không gian trong lành, cân bằng và giàu năng lượng tích cực cho cộng đồng cư dân hiện đại.
Bước chân vào khuôn viên The Habitat, cư dân ngay lập tức cảm nhận được sự khác biệt từ khu thương mại tích hợp tiện lợi đến sảnh đón tiếp được thiết kế trang nhã, sang trọng – nơi mỗi cuộc gặp gỡ, tiếp khách hay sinh hoạt thường nhật đều trở nên chỉn chu và đẳng cấp. Bao quanh không gian sống là hệ cảnh quan xanh được đầu tư kỹ lưỡng với vườn cây nhiệt đới, lối dạo bộ rợp bóng mát, khu sinh hoạt chung và đồi cỏ Habitat đặc trưng, tạo nên những khoảng thở thư thái hiếm hoi giữa lòng đô thị phát triển.
The Habitat đặc biệt chiều lòng những cư dân yêu thích vận động và chăm sóc sức khỏe với chuỗi tiện ích thư giãn – thể thao được bố trí hài hòa ngoài trời. Hồ bơi tràn bờ, hồ bơi dành riêng cho trẻ em, khu thiền tĩnh lặng hay không gian yoga giữa thiên nhiên giúp mỗi ngày trôi qua đều là một hành trình tái tạo năng lượng. Điểm nhấn không thể bỏ qua chính là khu cabana bên hồ bơi – nơi cư dân có thể tận hưởng trọn vẹn cảm giác nghỉ dưỡng riêng tư, thả lỏng cả thể chất lẫn tinh thần.
Sự kết hợp tinh tế giữa kiến trúc hiện đại, tư duy thiết kế xanh và hệ tiện ích được chăm chút đến từng chi tiết đã tạo nên dấu ấn riêng cho The Habitat Bình Dương. Đây không chỉ là nơi an cư chất lượng, mà còn là biểu tượng của phong cách sống tinh tế, văn minh và hài hòa với thiên nhiên – một lựa chọn đáng giá cho những ai đề cao giá trị sống bền vững và niềm tự hào khi gọi nơi đây là “nhà”.






MẶT BẰNG CĂN HỘ HABITAT
The Habitat Bình Dương định hình chuẩn mực sống khác biệt thông qua cách tổ chức mặt bằng được nghiên cứu kỹ lưỡng, ưu tiên tối đa sự yên tĩnh và cảm giác riêng tư cho cư dân. Mỗi tầng chỉ bố trí khoảng 7–10 căn hộ, tạo nên mật độ sinh hoạt thấp, không gian thoáng đãng và sự an tâm hiếm thấy giữa các khu căn hộ cao tầng hiện nay.
Từng không gian tại The Habitat được phát triển dựa trên triết lý cân bằng hài hòa: đủ hiện đại để đáp ứng nhịp sống năng động, nhưng vẫn đủ xanh và thoáng để nuôi dưỡng cảm giác thư thái mỗi ngày. Chính sự dung hòa này đã khiến dự án trở thành lựa chọn phù hợp cho gia đình trẻ đang xây dựng tổ ấm, giới chuyên gia quốc tế làm việc lâu dài tại khu vực, đồng thời cũng là điểm đến hấp dẫn với các nhà đầu tư tìm kiếm dòng sản phẩm có tính thanh khoản và giá trị bền vững theo thời gian.
Danh mục sản phẩm tại The Habitat đa dạng với các loại căn hộ từ 1 đến 3 phòng ngủ, đáp ứng linh hoạt nhu cầu ở thực lẫn khai thác cho thuê. Mỗi căn hộ đều được thiết kế theo hướng tối ưu công năng, mở rộng tầm nhìn, tận dụng ánh sáng tự nhiên và luồng gió đối lưu, mang lại cảm giác rộng rãi, thông thoáng và tràn đầy sinh khí.
Giữa trung tâm đô thị Bình Dương đang phát triển mạnh mẽ, The Habitat không chỉ mang đến một nơi để ở, mà là một không gian sống trọn vẹn – nơi tiện nghi, riêng tư và chất lượng được kết tinh trong từng chi tiết, giúp cư dân tận hưởng trọn vẹn giá trị của một tổ ấm hiện đại giữa nhịp sống sôi động.











GIÁ BÁN THE HABITAT
Với mặt bằng giá dao động từ 45 – 50 triệu/m², căn hộ The Habitat Bình Dương – giai đoạn 3 đang nổi lên như một lựa chọn sáng giá, thu hút sự quan tâm mạnh mẽ từ cả người mua ở thực lẫn giới đầu tư giàu kinh nghiệm. Trong bối cảnh quỹ căn hộ chất lượng tại khu vực trung tâm ngày càng khan hiếm, The Habitat ghi điểm nhờ vị trí chiến lược, không gian sống chuẩn mực cùng giá trị sử dụng cao, tạo nền tảng vững chắc cho tiềm năng gia tăng giá trị trong trung và dài hạn.
Không chỉ dừng lại ở một nơi an cư tiện nghi, The Habitat còn được đánh giá là sản phẩm đầu tư an toàn khi hội tụ đầy đủ các yếu tố: vị trí tốt, cộng đồng cư dân chất lượng, nhu cầu thuê ổn định và biên độ tăng giá rõ ràng theo đà phát triển hạ tầng khu vực. Đây chính là giai đoạn phù hợp để “đón sóng”, khi dự án đang được áp dụng nhiều chính sách bán hàng ưu đãi cùng các phương án hỗ trợ tài chính linh hoạt từ chủ đầu tư.
Liên hệ ngay để cập nhật bảng giá mới nhất, chính sách ưu đãi hiện hành và nhận tư vấn chuyên sâu từ đội ngũ chuyên viên giàu kinh nghiệm, giúp quý khách lựa chọn đúng sản phẩm, đúng thời điểm và tối ưu giá trị đầu tư lâu dài.

CĂN HỘ MẪU THE HABITAT








